南京梧桐龙凤论坛,xc8866全国论坛,兰州一品阁论坛,修车论坛一品阁
首页
装修案例
酒店空间
办公空间
店铺空间
餐饮空间
娱乐空间
住宅空间
培训机构
装修百科
空间设计
材料施工
常见疑问
问题解答
设计团队
服务保障
施工流程
设计流程
售后服务
关于我们
联系我们
028-83385863
当前位置:
成都工装公司
>
装修案例
>
住宅空间
>
酒店空间
办公空间
店铺空间
餐饮空间
娱乐空间
住宅空间
培训机构
新都富力桃园简欧套三住宅装修完工作品
发布时间:09-19 | 浏览量: 人浏览
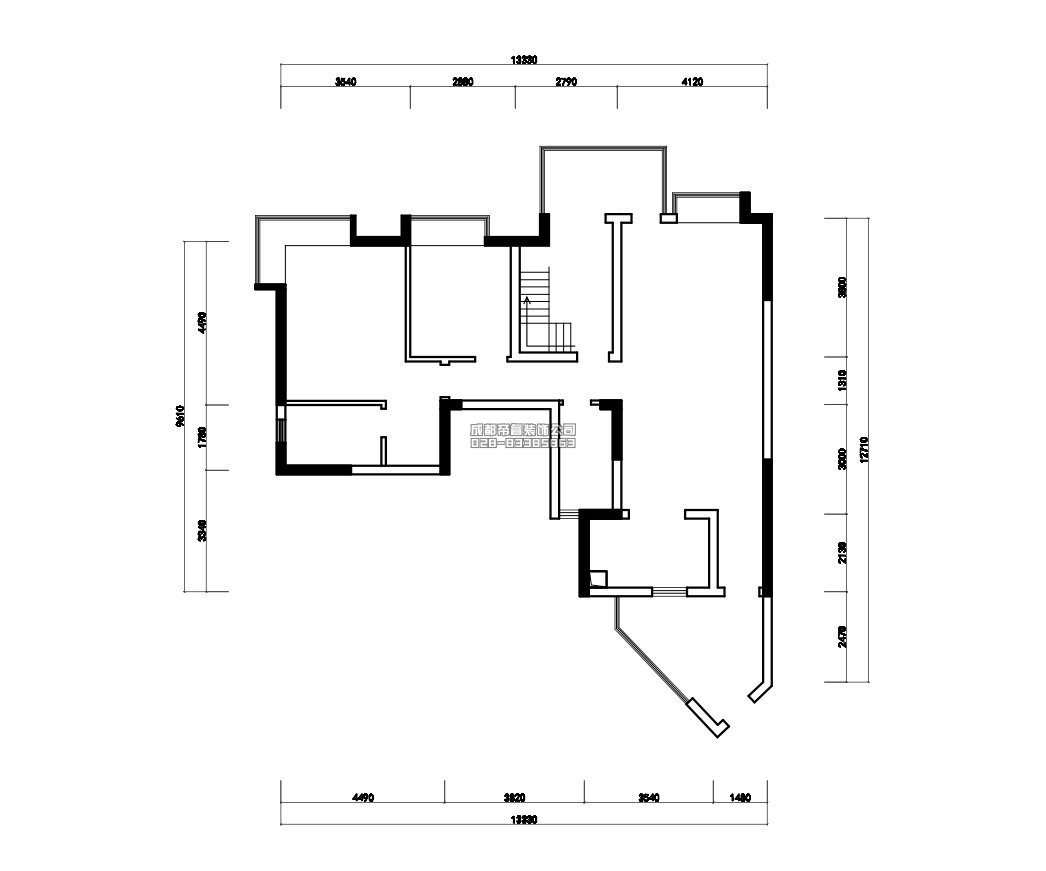
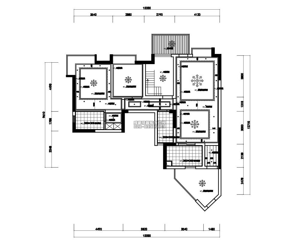
本案例坐落于成都新都富力桃园B7栋705号房,为简欧风格套三精装修住宅。该设计案例意在打造一种简约舒适的居住环境,整个室内在设计格局上非常细致,其表现空间尽显轻奢。万先生作为该房屋居住者,在刚开始与张老师接触之后,就有着许多装修想法,张雄为本案的主要设计工作负责人。在倾听业主真实需求以后,设计师将空间大胆的进行布局。格局的走向及室内布局的清晰,使得在软装方面都游刃有余,在这里我们将电视柜剔除了木色,以最简约的方式与电视背景墙融合,这样也不会显得那么叛逆,反而非常融洽。下面成都帝睿装饰给大家分享该房屋部分的设计图纸细节,我们一起来看看。
简欧套三住宅家原始结构平面设计图
简欧套三住宅家具布置平面设计图
简欧套三住宅顶面平面设计图
简欧套三住宅背景墙立面设计图
上一篇:
现代简约小复式公寓装修效果图
下一篇:
德阳世家星湖湾260平别墅装修效果图
申请免费设计
相关资讯
小户型住宅工业风设计效果图鉴赏
查看详情
100平米住宅现代风格室内设计效果图赏析
查看详情
住房装修常见的三种方式有哪些优缺点?
查看详情
精选案例
德阳御景湾230平住宅装修设计效果图
温江金河谷179平住宅装修效果图
德阳世家星湖湾260平别墅装修效果图
现代简约小复式公寓装修效果图
漂亮的乡村别墅装修效果图
成都央湖名邸家庭住宅装修完工作品效果
关于帝睿
服务保障
关于我们
联系我们
装修案例
酒店空间
办公空间
店铺空间
餐饮空间
娱乐空间
住宅空间
培训机构
资讯百科
空间设计
材料施工
常见疑问
问题解答
帝睿微博
客服微信
028-83385863
Copyright © 2014-2025 成都帝睿建筑工程有限公司 版权所有
蜀ICP备14023125号-1
??
姓名:
手机:
类型:
面积:
028-83385863(全国服务热线)
您也可以致电人工服务热线极速报价 无需等待
??
在线咨询
电话
028-83385863
在线留言
微信扫一扫
返回顶部
德阳御景湾230平住宅装修设计效果图
温江金河谷179平住宅装修效果图
德阳世家星湖湾260平别墅装修效果图
现代简约小复式公寓装修效果图
漂亮的乡村别墅装修效果图
成都央湖名邸家庭住宅装修完工作品效果